背景资料:
某二级公路,全长9.32km,全路段的石方爆破主要集中在K2+300~K2+420、K3+240~K3+480、K6+450~K6+490、K8+590~K8+810,爆破路段附近无重要建筑物。施工单位编制了“公路路堑石方爆破工程专项施工方案”。专项施工方案编制的主要内容包括工程概况、编制依据、施工计划、施工工艺技术、劳动力计划等。
施工单位编制的爆破施工流程为:施爆区现场勘察→爆破设计及设计审批→配备专业施爆人员→施爆区施工放样→用机械清除施爆区强风化岩石→A→爆破器材检查与试验炮→炮孔检查与废碴清除→装药并安装引爆器材→布置安全岗和施爆区安全员→炮孔堵塞→撤离施爆区人员→起爆→B→解除警戒→测定爆破效果(包括飞石、震动波对施爆区内、外构造物造成的破坏及损失)。
施工单位编制的爆破施工方案为:根据爆破工程量要求,综合考虑爆区地形、地质、环境条件、设备和技术条件等,石方爆破自上而下分台阶逐层进行,采用电力起爆。爆破高度小于5m时,用浅眼爆破法分层爆破,分层高度2~3m;爆破高度5~10m时,用深孔爆破法一次爆破到设计标高;爆破高度超过10m时,分台阶进行深孔爆破,工作台阶分层高度定为5~10m。永久边坡采用光面爆破的方法进行处理。

施工单位根据爆破施工方案、工程量、施工进度计划、施工质量要求、现有机械技术状况等配置了机械设备,石方爆破主要机械设备如下表:

在爆破施工现场,工班长要求操作人员严禁穿化纤衣服,手机必须处于静音状态,堵塞材料应采用钻孔的石碴、粘土、岩粉等,堵塞长度严格按照爆破设计进行,不得自行增加药量或改变堵塞长度,如需调整,应征得现场技术人员和监理工程师的同意并作好变更记录。
本题知识点:公路工程项目施工管理,
1) 补充专项施工方案编制的主要内容。
【正确答案】 还需补充:施工安全保证措施、计算书及附图。
【答案解析】
本题知识点:陆上作业安全技术要求,公路工程项目施工管理(历年)
2) 写出爆破施工流程中工序A、B以及石方爆破主要机械设备表中机械设备C的名称。
【正确答案】 A为钻孔,B为通风排烟,检查、处理有无“盲炮”,C为空气压缩机。
【答案解析】
本题知识点:陆上作业安全技术要求,公路工程项目施工管理(历年)
3) 爆破施工方案中采用的光面爆破是否合理?说明理由。
【正确答案】 合理,光面爆破通过控制爆破的作用范围和方向,使爆后的岩石光滑、平整,防止岩面开裂,以减少超、欠挖和支护的工程量,增加岩壁的稳固性,背景中无重要建筑物,并要求在永久边坡中使用光面爆破,合理。
【答案解析】
本题知识点:陆上作业安全技术要求,公路工程项目施工管理(历年)
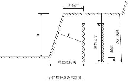
4) 写出台阶爆破参数示意图中爆破参数H与W的名称。
【正确答案】 H为台阶高度,W为最小抵抗线。(装药重心到自由面的最短距离)
【答案解析】
本题知识点:陆上作业安全技术要求,公路工程项目施工管理(历年)
5) 指出工班长对操作人员所提要求中的错误并改正。
【正确答案】 错误:(1)手机必须处于静音状态;(2)征得现场技术人员和监理工程师的同意做好变更记录。
改正:(1)手机关机;(2)应征得设计人员的同意并出具变更通知单。
【答案解析】
本题知识点:陆上作业安全技术要求,公路工程项目施工管理(历年)
}}
选课选课中心
试听免费试听
题库试题中心
指南报考指南
名师网校名师
招生招生方案
动态考试动态
微信消防微信