中国图学学会举办的全国BIM技能等级一级考试报考人数较多,应用范围较广,掌握往期试题,熟悉考点难点,是每个考生快速了解考试的必要手段。第四期全国BIM技能等级一级考试试卷如下,供广大考生参考学习,全国BIM技能等级一级考试试卷试题视频解析详见培训课程。
点击咨询课程>> 快速了解课程详细>> 立即购课报名学习>>

全国BIM等级考试学习交流群:813273036
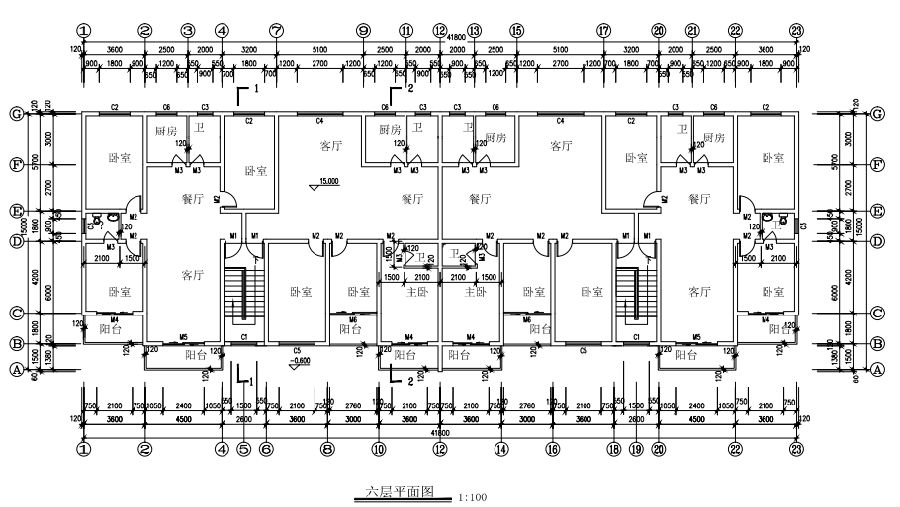
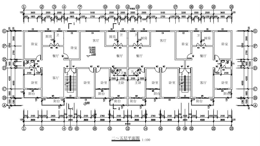
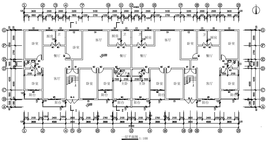
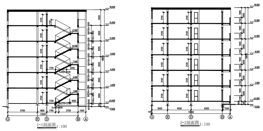
五、根据给出的平面图、立面图、剖面图及楼梯详图,在考生文件夹中给出的“第四期BIM一级考试样板文件”基础上,创建建筑物三维模型,以“六层建筑”为文件名保存到考生文件夹中。具体要求如下: (40分)
(1)设置项目信息: (3分)
1)项目发布日期:2014年6月18日。
2)客户名称:街心花园小区。
3)项目地址:中国×××省×××市×××路×××号。
4)项目名称:N2栋。
5)项目编号:2014xxx-1.
(2)基本建模: (13分)
1)创建墙体模型,墙体定位及厚度见平面图,墙体均沿轴线对称。
2)创建楼板及屋顶模型,其中楼板厚度150mm,平屋顶厚度350mm.
3)创建楼梯模型,楼梯扶手和梯井尺寸取适当值即可。
4)标注房间名称。
(3)放置门窗及家具: (10分)
1)放置门窗,门窗尺寸见表1,其中外墙门窗布置位置需精确,内部门窗对位置不作精确要求。

2)放置家具。根据平面图,对轴线1、2和轴线22、23间的卫生间进行蹲便器和洗手盆布置,布置位置参考图中取适当位置即可。
注:门窗及家具构件使用模板文件中给出的构件集即可,不要载入和应用新的构件集。
(4)按照表1创建门窗明细表。 (3分)
(5)建立图纸: (8分)
建立AO尺寸图纸,根据给定的平立剖面图,将模型的平面图、立面图、剖面图及门窗明细表分别插入图纸中,并根据图纸内容将图纸识图命名,图纸编号任意,可布置多张图纸。
(6)设置相机,对生成的三维视图命名: (3分)
在一楼轴线1、2间的卫生间内设置相机,使相机照向蹲便器和洗手盘,调整生成的三维视图,使蹲便器和洗手盘可见,将该三维视图命名为“相机一卫生间”;在一楼轴线2、4间的客厅处设置相机,使相机照向餐厅方向,调整生成的三维视图,使厨房、卫生间门可见,将生成的三维视图命名为“相机一餐厅”。
第一题 第二题 第三题 第四题 第五题
立即购课视频解析往期试题>>
以上是第四期全国BIM技能等级一级考试试卷,全国BIM技能等级一级考试培训课程包含往期所有试题解析视频,建设工程教育网携手上海交通大学老师,录制了适合各种基础考生学习的培训课程,帮助大家在短期内掌握BIM应用技能,顺利通过中国图学学会举办的全国BIM技能等级考试,获取由中国图学学会颁发的等级证书,和人社部颁发的培训证书,一考两证,快速咨询证书>>
BIM等级课程招生立即查看>>