中国图学学会举办的全国BIM技能等级一级考试报考人数较多,应用范围较广,掌握往期试题,熟悉考点难点,是每个考生快速了解考试的必要手段。第三期全国BIM技能等级一级考试试卷如下,供广大考生参考学习,全国BIM技能等级一级考试试卷试题视频解析详见培训课程。
点击咨询课程>> 快速了解课程详细>> 立即购课报名学习>>

全国BIM等级考试学习交流群:813273036
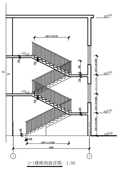
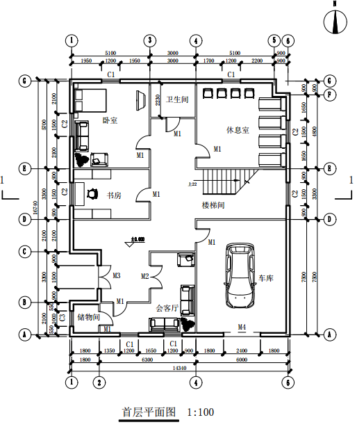
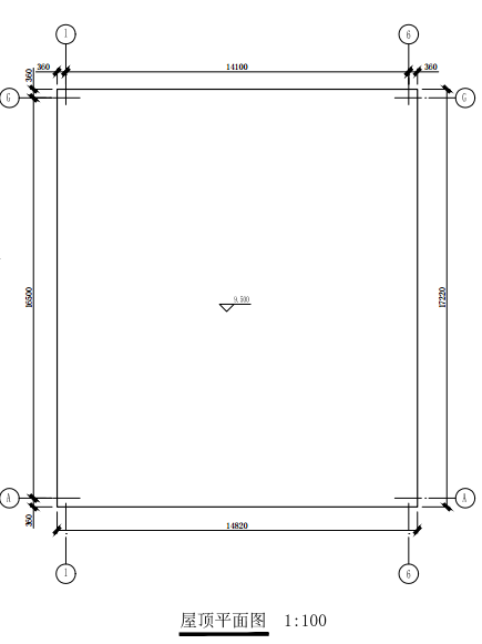
5、参照下面给出的平面图、立面图,在考生文件夹中给出的“三层建筑模板”文件的基础上,创建三层建筑模型,具体要求如下: (40分)
(1)基本建模(10分)
1)创建墙体模型,其中内墙厚度均为100mm,外墙厚度均为240mm.
2)建立各层楼板模型,楼板厚度均为150mm,顶部与各层标高平齐。楼板在楼梯间处应开洞,并按图中尺寸创建并放置楼梯模型。楼梯扶手和梯井尺寸取适当值即可。
3)建立屋顶模型。屋顶为平屋顶,厚度为200mm,出檐取240mm.
4)按平面图要求创建房间,并标注房间名称。
5)三层与二层的平面布置与尺寸完全一样。
(2)放置门窗及家具(15分)
1)按平、立面要求,布置内外门窗和家具。其中外墙门窗布置位置需精确,内部门窗对位置不作精确要求。家具布置位置参考图中取适当位置即可。
2)门构件集共有4种型号:M1、M2、M3、M4,尺寸分别为:900x2000、1500x2100、1500x2000、2400x2100.同样的,窗构件集共有3种型号:C1、C2、C3,尺寸分别为:1200x1500、 1500x1500、 1000x1200.
3)家具构件和门构件使用模板文件中给出的构件集即可,不要载入和应用新的构件集。
(3)创建视图与明细表(15分)
1)新建平面视图,并命名为“首层房间布置图”。该视图只显示墙体、门窗、房间和房间名称。视图中房间需着色,着色颜色自行取色即可。同时给出房间图例。
2)创建门、窗明细表,门、窗明细表均应包含构件集类型、型号、高度及合计字段。明细表按构件集类型统计个数。
3)建筑各层和屋顶标高处均应有对应的平面视图。
(4)最后,请将模型文件以“三层建筑”为文件名保存到考生文件夹中。
第一题 第二题 第三题 第四题 第五题
立即购课视频解析往期试题>>
以上是第三期全国BIM技能等级一级考试试卷,全国BIM技能等级一级考试培训课程包含往期所有试题解析视频,建设工程教育网携手上海交通大学老师,录制了适合各种基础考生学习的培训课程,帮助大家在短期内掌握BIM应用技能,顺利通过中国图学学会举办的全国BIM技能等级考试,获取由中国图学学会颁发的等级证书,和人社部颁发的培训证书,一考两证,快速咨询证书>>
BIM等级课程招生立即查看>>