中国图学学会举办的全国BIM技能等级一级考试报考人数较多,应用范围较广,掌握往期试题,熟悉考点难点,是每个考生快速了解考试的必要手段。第一期全国BIM技能等级一级考试试卷如下,供广大考生参考学习,全国BIM技能等级一级考试试卷试题视频解析详见培训课程。
点击咨询课程>> 快速了解课程详细>> 立即购课报名学习>>

全国BIM等级考试学习交流群:813273036
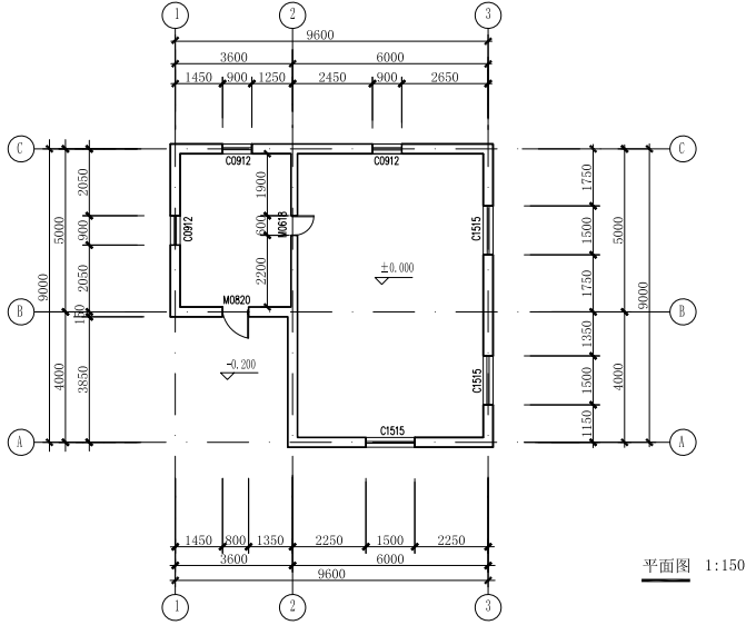
5、根据下面给出的平面图、立面图、三维图,建立房子的模型,具体要求如下: (40分)
(1)建立房子模型:
1)按照给出的平、立面图要求,绘制轴网及标高,并标注尺寸。
2)按照轴线创建墙体模型,其中内墙厚度均为200mm,外墙厚度均为300mm.
3)按照图纸中的尺寸在墙体中插入门和窗,其中门的型号:M0820,M0618,尺寸分别为800x2000mm, 600x1800mm;窗的型号:C0912,C1515,尺寸分别为900x1200mm, 1500x1500mm.
4)分别创建门和窗的明细表,门明细表包含类型、宽度、高度以及合计字段;窗明细表包含类型、底高度( 900mm)、宽度、高度以及合计字段。明细表按照类型进行成组和统计。
(2)建立A2尺寸的图纸,将模型的平面图、东立面图、西立面图、南立面图、北立面图以及门明细表和窗明细表分别插入至图纸中,并根据图纸内容将图纸视图命名,图纸编号任意。
(3)将模型文件以“房子。rvt”为文件名保存到考生文件夹中。
第一题 第二题 第三题 第四题 第五题
立即购课视频解析往期试题>>
全国BIM技能等级一级考试培训课程包含往期所有试题解析视频,建设工程教育网携手上海交通大学老师,录制了适合各种基础考生学习的培训课程,帮助大家在短期内掌握BIM应用技能,顺利通过中国图学学会举办的全国BIM技能等级考试,获取由中国图学学会颁发的等级证书,和人社部颁发的培训证书,一考两证,快速咨询证书>>
BIM等级课程招生立即查看>>