中国图学学会举办的全国BIM技能等级一级考试报考人数较多,应用范围较广,掌握往期试题,熟悉考点难点,是每个考生快速了解考试的必要手段。第七期全国BIM技能等级一级考试试卷如下,供广大考生参考学习,全国BIM技能等级一级考试试卷试题视频解析详见培训课程。
点击咨询课程>> 快速了解课程详细>> 立即购课报名学习>>
<

全国BIM等级考试学习交流群:813273036
五、根据以下要求和给出的图纸,创建模型并将结果输出。在考生文件夹下新建名为“第五题结果输出”的文件夹,将结果文件存于该文件夹。 (40分)
(1) BIM建模环境设置(5分)
1)以试题文件夹中的“第七期第5题样板”作为基准样板,创建项目文件。(2分)
2)设置项目信息:①项目发布日期:2015年11月5日;②项目名称:独栋别墅;③项目编号:2015001-1.(3分)
(2) BIM参数化建模(24分)
1)主要建筑构件的参数要求如下表。(9分)
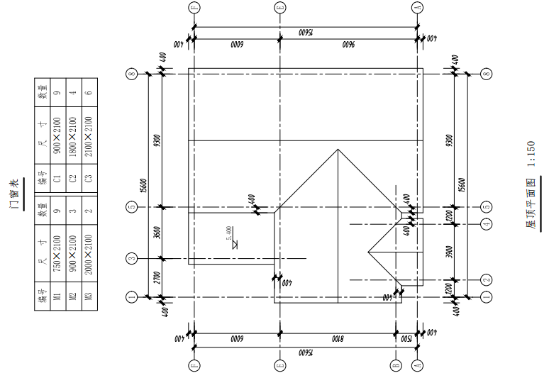
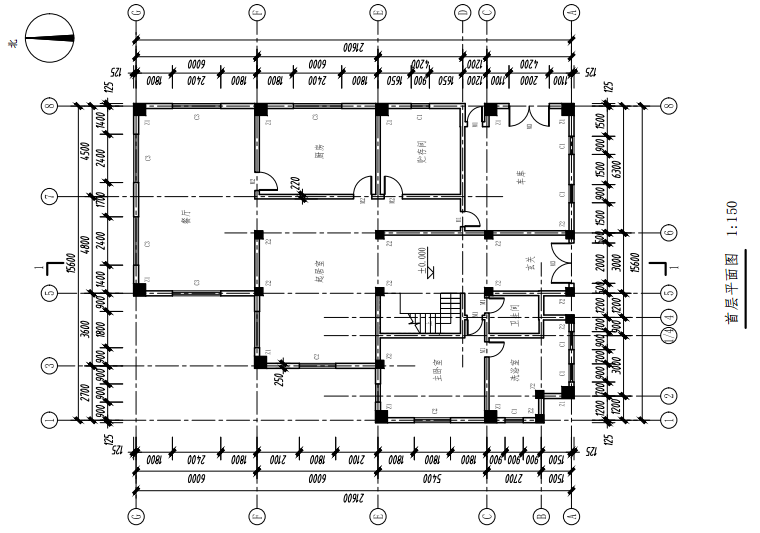
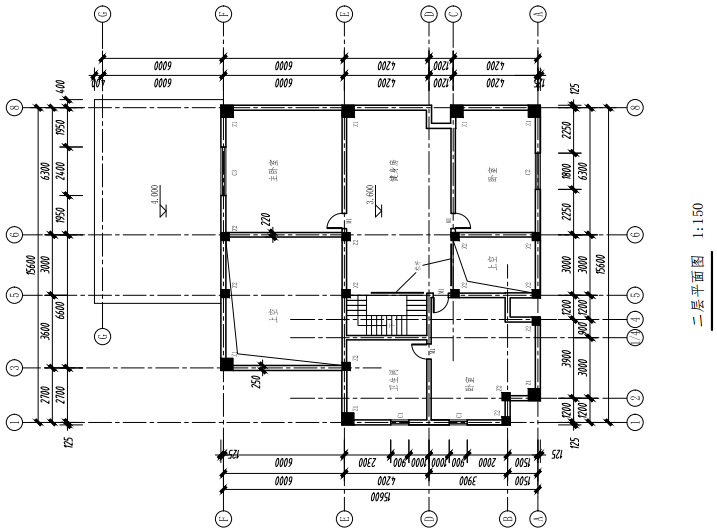
2)根据给出的图纸创建建筑形体,包括墙、柱、门、窗、屋顶、楼板、楼梯、栏杆。其中,门窗仅要求尺寸与位置正确,窗台高度均为900.未标明尺寸不作要求。(12分)
3)设置BIM属性:①为所有门窗增加属性,名称为“编号”;②根据图纸中的标注,对所有门窗的“编号”属性赋值。(3分)
(3)创建图纸(6分)
1)创建门窗明细表,要求包含类型、宽度、高度、底高度以及合计字段。(2分)
2)建立AO尺寸图纸,创建并放置首层平面图、(①-⑧立面图、1—1剖面图。(4分)
(4)模型文件管理(5分)
1)用“独栋别墅”为项目文件命名,并保存项目文件。(2分)
2)将创建的图纸导出为AutoCAD2010 DWG文件,将图纸上的视图和链接作为外部参照导出,命名为“平面图参照”。(3分)
图1
图2
图3
图4
图5
图6
第一题 第二题 第三题 第四题 第五题
立即购课视频解析往期试题>>
以上是第七期全国BIM技能等级一级考试试卷,全国BIM技能等级一级考试培训课程包含往期所有试题解析视频,建设工程教育网携手上海交通大学老师,录制了适合各种基础考生学习的培训课程,帮助大家在短期内掌握BIM应用技能,顺利通过中国图学学会举办的全国BIM技能等级考试,获取由中国图学学会颁发的等级证书,和人社部颁发的培训证书,一考两证,快速咨询证书>>
BIM等级课程招生立即查看>>