中国图学学会举办的全国BIM技能等级一级考试报考人数较多,应用范围较广,掌握往期试题,熟悉考点难点,是每个考生快速了解考试的必要手段。第八期全国BIM技能等级一级考试试卷如下,供广大考生参考学习,全国BIM技能等级一级考试试卷试题视频解析详见培训课程。
点击咨询课程>> 快速了解课程详细>> 立即购课报名学习>>

全国BIM等级考试学习交流群:813273036
五、根据以下要求和给出的图纸,创建模型并将结果输出。在考生文件夹下新建名为“第五题输出结果”的文件夹,将结果文件存在该文件夹。(40分)
(1) BIM建模环境设置(2分)
1)以试题文件夹中的“第八期第五题样板”作为基准样板,创建项目文件。(1分)
2)设置项目信息:①项目发布日期:2016年4月6日;②项目名称:土木系实验楼。(1分)
(2) BIM参数化建模(21分)
1)主要建筑构件的参数要求如下表,未标明尺寸与材质不做明确要求。(16分)
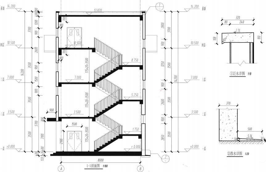
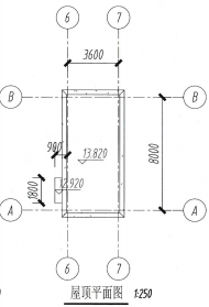
2)根据给出的图纸创建建筑形体,包括墙、柱、门、窗、屋顶、梁、楼板、楼梯、散水、压顶泛水、模型文字。其中,门窗要求尺寸与位置正确,窗台高度参见图纸。未标明尺寸不作要求。(5分)
(3)创建图纸(15分)
1)创建梁明细表,关键字(族与类型、结构材质、体积、合计),样式(合计个数、合计体积)要求与试卷一致。(2分)
2)创建多类别明细表,关键字(族与类型、类别、合计),样式(分类合计个数、计算总数)要求与试卷一致。(2分)
3)根据图纸创建“泛水详图”,样式(尺寸标注、坡度标注)要求与试卷一致。(3分)
4)使用样板中自带“第八期BIM技能等级试题”图框,创建“1-1剖面图”图纸,样式(尺寸标注、视图比例:1:100、图纸命名:1-1剖面图、截面填充图案:实心填充、高程标注、轴头显示样式:仅显示A轴、B轴且在底部显示)要求与试卷一致。(8分)
(4)模型文件管理(2分)
1)用“土木系实验楼”为项目文件命名,并保存为项目文件。(1分)
2)将创建的“1-1剖面图”图纸导出为AutoCAD DWG文件,命名为“1-1剖面图”。(1分)
第一题 第二题 第三题 第四题 第五题
立即购课视频解析往期试题>>
以上是第八期全国BIM技能等级一级考试试卷,全国BIM技能等级一级考试培训课程包含往期所有试题解析视频,建设工程教育网携手上海交通大学老师,录制了适合各种基础考生学习的培训课程,帮助大家在短期内掌握BIM应用技能,顺利通过中国图学学会举办的全国BIM技能等级考试,获取由中国图学学会颁发的等级证书,和人社部颁发的培训证书,一考两证,快速咨询证书>>
BIM等级课程招生立即查看>>