建设工程教育网
BIM

下载app
首页 > BIM > 试题中心 > 历年试题

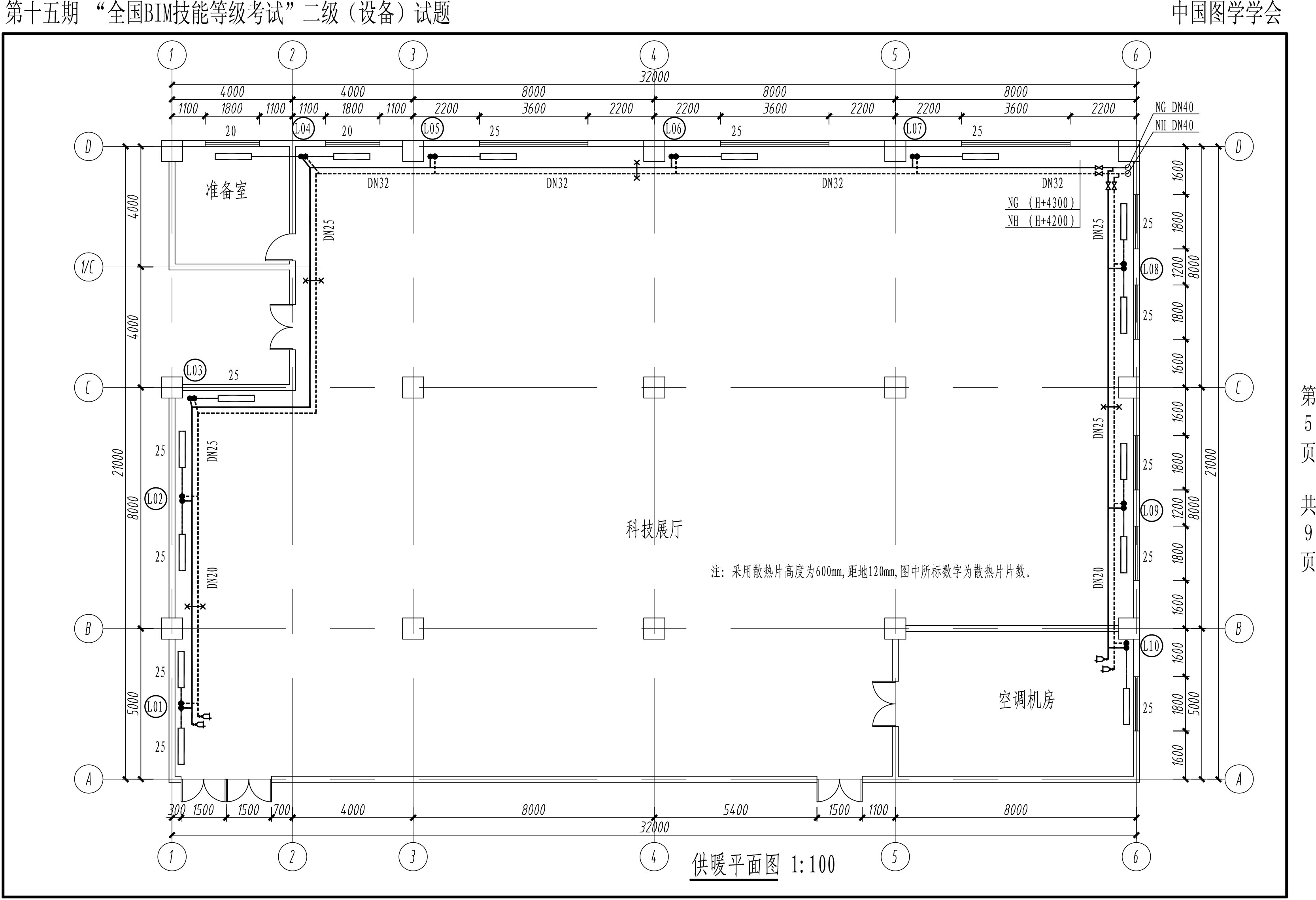
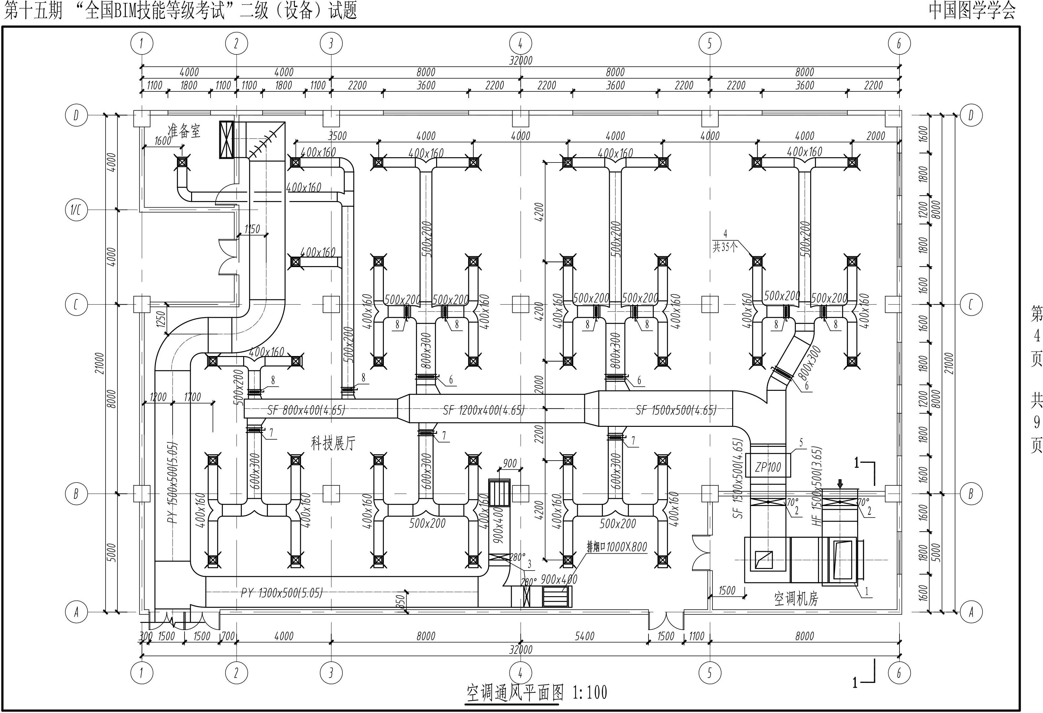
第十五期全国BIM技能等级考试二级设备试题第三题

 第十五期全国BIM技能等级二级考试已经结束,不知道考生考的怎么样呢?第十五期全国BIM技能等级二级设备考试试卷如下,供广大考生参考学习。

立即购课>>     课程咨询>>    QQ群交流学习>>

第十五期BIM二级设备-3


第十五期BIM二级设备-4


第十五期BIM二级设备-5

第十五期BIM二级设备-6



BIM等级课程招生立即查看>>

打开APP看资讯 更多更快更新鲜 >>
学习资料包免费领取

学习计划攻略考试政策

/模拟题备考精华

一键领取
加入组织一起备考

加入一级建师
备考交流学习

关注公众号
(jianzao1)了解更多

前往建设工程教育网APP查看 体验更佳!
取消 前往
下载APP

交流分享,早日上岸!

添加老师微信号
回复报考专业进群
已加入购物车