2014年监理工程师考试《建设工程进度控制》模拟试题(二)
11、在某工程双代号网络计划中,工作M的最早开始时间为第15天,其持续时间为7天。该工作有两项紧后工作,它们的最早开始时间分别为第27天和第30天,最迟开始时间分别为第28天和第33天,则工作M的总时差和自由时差为( )天。
A、均为5
B、分别为6和5
C、均为6
D、11和6
正确答案: B
答案解析:本题考查的是双代号网络计划时间参数的计算。工作的总时差等于该工作最迟完成时间与最早完成时间之差,或该工作最迟开始时间与最早开始时间之差,即:总时差=[28-(15+7)]天=6天。对于有紧后工作的工作,其自由时差等于本工作之紧后工作最早开始时间减本工作最早完成时间所得之差的最小值,即:自由时差=[27-(15+7)]天=5天。参见教材P46、47。
12、某工程双代号网络计划如下图所示,其中关键线路有( )条。

A、1
B、2
C、3
D、4
正确答案: B
答案解析:本题考查的是双代号网络计划关键线路的确定。本题可用标号法快速找出关键线路。本题的关键线路有①②⑥⑦⑨、①②③④⑤⑦⑨两条。参见教材P52。
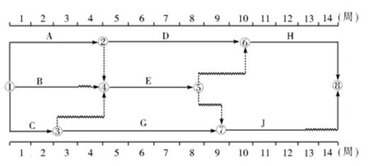
13、某工程双代号时标网络计划如下图所示,其中工作E的总时差为( )周。

A、0
B、1
C、2
D、3
正确答案: B
答案解析:本题考查的是双代号时标网络计划工作总时差的判定。工作的总时差:①以终点节点为完成节点的工作,其总时差应等于计划工期与本工作最早完成时间之差;②其他工作的总时差等于其紧后工作的总时差加本工作与该紧后工作之间的时间间隔所得之和的最小值。据此计算,工作E对应上述第②中情形,工作H的总时差为0,工作J的总时差为0,工作I的总时差为2周,所以工作E的总时差为min{0+2,2+0,0+1}=1周。参见教材P60。
14、某工程双代号时标网络计划如下图所示:
工作D的总时差和自由时差分别为( )。

A、1周和1周
B、1周和0周
C、均为0周
D、2周和1周
正确答案: C
答案解析:本题考查的是双代号时标网络计划工作总时差和自由时差的判定。工作的总时差:①以终点节点为完成节点的工作,其总时差应等于计划工期与本工作最早完成时间之差;②其他工作的总时差等于其紧后工作的总时差加本工作与该紧后工作之间的时间间隔所得之和的最小值。工作D的为关键工作,其总时差和自由时差均为0周。参见教材P60、61。
15、在下图所示双代号时标网络计划中,如果C、E、H三项工作因共用一台施工机械而必须顺序施工,则该施工机械在现场的最小闲置时间为( )周。

A、4
B、3
C、2
D、1
正确答案: C
答案解析:本题考查的双代号时标网络计划的应用。如果按原计划实行,施工机械闲置时间总共为4周。通过时间参数的计算,工作C的总时差为2周、自由时差为0周,工作E的总时差为2周,工作H的总时差为0周、自由时差为0周。三项工作共用一台机械且必须顺序施工,关键线路为ADH,对于工作H不可以提前开始也不可以推迟开始。对于工作C只可以晚开始2周,也就是在第3周开始工作,才不会影响其后工作G、J的完成。这样施工机械在现场最小闲置时间为4-2=2周。参见教材P64。
16、在建设工程进度监测过程中,现场实地检查工程进展情况属于( )的主要方式。
A、实际进度与计划进度的对比分析
B、实际进度数据的加工处理
C、进度计划执行中的跟踪检查
D、实际进度数据的统计分析
正确答案: C
答案解析:本题考查的是进度计划执行中的跟踪检查。跟踪检查的主要工作是定期收集反映工程实际进度的有关数据。为了全面、准确地掌握进度计划的执行情况,监理工程师应认真做好以下三方面的工作:①定期收集进度报表资料;②现场实地检查工程进展情况;③定期召开现场会议。参见教材P98。
17、在建设工程进度调整的系统过程中,采取措施调整进度计划时,应当以( )为依据。
A、本工作及后续工作的总时差
B、本工作及后续工作的自由时差
C、非关键工作所拥有的机动时间
D、总工期和后续工作的限制条件
正确答案: D
答案解析:本题考查的是采取措施调整进度计划。采取进度调整措施,应以后续工作和总工期的限制条件为依据,确保要求的进度目标得以实现。参见教材P99。
18、当利用S曲线比较工程项目的实际进度与计划进度时,如果检查日期实际进展点落在计划S曲线的左侧,则该实际进展点与计划S曲线在水平方向的距离表示工程项目( )。
A、实际超额完成的任务量
B、实际拖欠的任务量.
C、实际进度拖后的时间
D、实际进度超前的时间
正确答案: D
答案解析:本题考查的是实际进度与计划进度的比较。如果工程实际进展点落在计划S曲线左侧,表明此时实际进度比计划进度超前。S曲线的水平方向表示累计时间。该实际进展点与计划S曲线在水平方向的距离表示工程项目实际进度超前的时间。参见教材P104。
19、设计阶段进度控制的主要任务是( )。
A、工期控制
B、出图控制
C、施工控制
D、质量控制
正确答案: B
答案解析:本题考查的是设计阶段进度控制工作程序。建设工程设计阶段进度控制的主要任务是出图控制,也就是通过采用有效措施使工程设计者如期完成初步设计、技术设计、施工图设计等各阶段的设计工作,并提交相应的设计图纸及说明。参见教材P117。
20、工程建设施工阶段进度控制的最终目的是( )。
A、为提前完成工程项目任务
B、为多创收益
C、保证工程项目按期建成交付使用
D、保证工程项目顺利完工
正确答案: C
11、在某工程双代号网络计划中,工作M的最早开始时间为第15天,其持续时间为7天。该工作有两项紧后工作,它们的最早开始时间分别为第27天和第30天,最迟开始时间分别为第28天和第33天,则工作M的总时差和自由时差为( )天。
A、均为5
B、分别为6和5
C、均为6
D、11和6
正确答案: B
答案解析:本题考查的是双代号网络计划时间参数的计算。工作的总时差等于该工作最迟完成时间与最早完成时间之差,或该工作最迟开始时间与最早开始时间之差,即:总时差=[28-(15+7)]天=6天。对于有紧后工作的工作,其自由时差等于本工作之紧后工作最早开始时间减本工作最早完成时间所得之差的最小值,即:自由时差=[27-(15+7)]天=5天。参见教材P46、47。
12、某工程双代号网络计划如下图所示,其中关键线路有( )条。
A、1
B、2
C、3
D、4
正确答案: B
答案解析:本题考查的是双代号网络计划关键线路的确定。本题可用标号法快速找出关键线路。本题的关键线路有①②⑥⑦⑨、①②③④⑤⑦⑨两条。参见教材P52。
13、某工程双代号时标网络计划如下图所示,其中工作E的总时差为( )周。
A、0
B、1
C、2
D、3
正确答案: B
答案解析:本题考查的是双代号时标网络计划工作总时差的判定。工作的总时差:①以终点节点为完成节点的工作,其总时差应等于计划工期与本工作最早完成时间之差;②其他工作的总时差等于其紧后工作的总时差加本工作与该紧后工作之间的时间间隔所得之和的最小值。据此计算,工作E对应上述第②中情形,工作H的总时差为0,工作J的总时差为0,工作I的总时差为2周,所以工作E的总时差为min{0+2,2+0,0+1}=1周。参见教材P60。
14、某工程双代号时标网络计划如下图所示:
工作D的总时差和自由时差分别为( )。
A、1周和1周
B、1周和0周
C、均为0周
D、2周和1周
正确答案: C
答案解析:本题考查的是双代号时标网络计划工作总时差和自由时差的判定。工作的总时差:①以终点节点为完成节点的工作,其总时差应等于计划工期与本工作最早完成时间之差;②其他工作的总时差等于其紧后工作的总时差加本工作与该紧后工作之间的时间间隔所得之和的最小值。工作D的为关键工作,其总时差和自由时差均为0周。参见教材P60、61。
15、在下图所示双代号时标网络计划中,如果C、E、H三项工作因共用一台施工机械而必须顺序施工,则该施工机械在现场的最小闲置时间为( )周。
A、4
B、3
C、2
D、1
正确答案: C
答案解析:本题考查的双代号时标网络计划的应用。如果按原计划实行,施工机械闲置时间总共为4周。通过时间参数的计算,工作C的总时差为2周、自由时差为0周,工作E的总时差为2周,工作H的总时差为0周、自由时差为0周。三项工作共用一台机械且必须顺序施工,关键线路为ADH,对于工作H不可以提前开始也不可以推迟开始。对于工作C只可以晚开始2周,也就是在第3周开始工作,才不会影响其后工作G、J的完成。这样施工机械在现场最小闲置时间为4-2=2周。参见教材P64。
16、在建设工程进度监测过程中,现场实地检查工程进展情况属于( )的主要方式。
A、实际进度与计划进度的对比分析
B、实际进度数据的加工处理
C、进度计划执行中的跟踪检查
D、实际进度数据的统计分析
正确答案: C
答案解析:本题考查的是进度计划执行中的跟踪检查。跟踪检查的主要工作是定期收集反映工程实际进度的有关数据。为了全面、准确地掌握进度计划的执行情况,监理工程师应认真做好以下三方面的工作:①定期收集进度报表资料;②现场实地检查工程进展情况;③定期召开现场会议。参见教材P98。
17、在建设工程进度调整的系统过程中,采取措施调整进度计划时,应当以( )为依据。
A、本工作及后续工作的总时差
B、本工作及后续工作的自由时差
C、非关键工作所拥有的机动时间
D、总工期和后续工作的限制条件
正确答案: D
答案解析:本题考查的是采取措施调整进度计划。采取进度调整措施,应以后续工作和总工期的限制条件为依据,确保要求的进度目标得以实现。参见教材P99。
18、当利用S曲线比较工程项目的实际进度与计划进度时,如果检查日期实际进展点落在计划S曲线的左侧,则该实际进展点与计划S曲线在水平方向的距离表示工程项目( )。
A、实际超额完成的任务量
B、实际拖欠的任务量.
C、实际进度拖后的时间
D、实际进度超前的时间
正确答案: D
答案解析:本题考查的是实际进度与计划进度的比较。如果工程实际进展点落在计划S曲线左侧,表明此时实际进度比计划进度超前。S曲线的水平方向表示累计时间。该实际进展点与计划S曲线在水平方向的距离表示工程项目实际进度超前的时间。参见教材P104。
19、设计阶段进度控制的主要任务是( )。
A、工期控制
B、出图控制
C、施工控制
D、质量控制
正确答案: B
答案解析:本题考查的是设计阶段进度控制工作程序。建设工程设计阶段进度控制的主要任务是出图控制,也就是通过采用有效措施使工程设计者如期完成初步设计、技术设计、施工图设计等各阶段的设计工作,并提交相应的设计图纸及说明。参见教材P117。
20、工程建设施工阶段进度控制的最终目的是( )。
A、为提前完成工程项目任务
B、为多创收益
C、保证工程项目按期建成交付使用
D、保证工程项目顺利完工
正确答案: C
答案解析:本题考查的是施工进度控制目标体系。保证工程项目按期建成交付使用,是建设工程施工阶段进度控制的最终目的。参见教材P124。